Ledig lejlighed Vodroffs Tværgade 15, 3. tv

Lejligheden i Vodroffs Tværgade 15, 3. tv., 1909 Frederiksberg C bliver ledig til overtagelse pr. 1. januar 2026. Den kan lejes af medlemmer af Danmarks Lærerforening.

Lejligheden i Vodroffs Tværgade 15, 3. tv. 1909 Frederiksberg C er ledig til overtagelse pr. 1. januar 2026.  

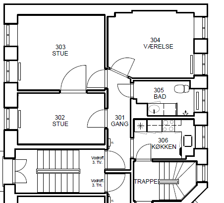
Det drejer sig om en lejlighed på 74 m2 med 3 værelser. Lejligheden ligger i en ejendom, der er opført i 1874.

Lejligheden består af et værelse og to stuer, og er blevet istandsat med bl.a. nyt badeværelse og nyt køkken med helt nye hårde hvidevarer. 

 

Hårde hvidevarer: Kogeplade, ovn, køle-/fryseskab, opvaskemaskine og emhætte.

 

Hent plantegning

 

Lejen m.v. udgør årligt:

Leje kr. 129.500,00
Aconto varme kr. 12.480,00
Beboerrep. kontingent kr. 750,00
I alt kr. 142.730,00
I alt pr. måned kr. 11.894,17

 

Lejen m.v. opkræves månedsvis forud

Ved lejekontraktens underskrift skal der udover første måneds leje indbetales 32.375,00 kr. i depositum og 32.375,00 kr. i forudbetalt leje. Både depositum og forudbetalt leje svarer til tre måneders leje.

Det er ikke tilladt at holde husdyr i lejligheden.

 

Fremvisning og spørgsmål til lejligheden

Der vil være mulighed for at se lejligheden mandag den 15. december 2026, kl. 16.30. Her vil viceværten stå for en fremvisning af lejligheden. Man skal blot møde op, der fremsendes ikke en mail omkring fremvisning. Dette vil være den eneste mulighed for at se lejligheden.

 

Ansøgning

Hvis du er interesseret i at leje lejligheden, skal du blot sende en mail med CPR- eller medlemsnummer, fulde navn, telefonnr. og nuværende adresse. Skriv "Vodroff" i emnefeltet. Mailen sendes til lejligheder@dlf.org.

 

Så deltager du i lodtrækningen om lejligheden. Din ansøgning skal være modtaget af Danmarks Lærerforening senest torsdag den 18. december 2025 kl. 8.00.

 

Udlejning

Der vil blive fundet en lejer til lejligheden ved lodtrækning. Vi behøver derfor ikke yderligere oplysninger eller bilag i din ansøgning. Alle der har ansøgt får besked, når der er fundet en lejer.

Vi skal gøre opmærksom på, at der kun kan udlejes til et medlem af Danmarks Lærerforening og dennes husstand. Der kan således ikke fremlejes til andre, f.eks. egne børn.

 

Spørgsmål?

Hvis du har spørgsmål om lejligheden, kan du kontakte ejendommens administrator Mie Jensen, fra CEJ Ejendomsadministration, på telefon 32 42 88 10 eller maj@cej.dk